Linha de corte de bobina de alumínioé um tipo de equipamento usado especialmente para relaxar, cortar e rebobinar bobinas de metal (incluindo tiras de alumínio) em tiras de largura necessária. É amplamente utilizado na indústria de processamento de metal, especialmente no campo do processamento de tira de alumínio. A seguir, é apresentada uma introdução detalhada à máquina de corte de bobina de alumínio.

|
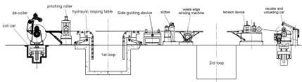
Descontraria, colocação de material, corte e rebobinagem são os principais processos domáquina de cortar bobina de alumínioOperação. Primeiro, o aparelho de desenrolamento posiciona a bobina de alumínio a ser processada no dispositivo de desenrolamento e depois o desdobra. O mecanismo de posicionamento do material guia a bobina de alumínio desdobrada para um corte preciso para a área de corte e corte. Depois que o corte é acabado, a tira de alumínio cortada é alimentada no recuo e enrolada.
Técnicas avançadas de corte, incluindo lâminas de alta precisão e rodas de pressão de alta resistência, são usadas pela linha de corte da bobina de alumínio durante o processo de corte para garantir a estabilidade e a precisão do corte. Simultaneamente, para satisfazer várias necessidades de processamento, a máquina de corte de bobina de alumínio também possui um sistema de controle avançado que pode monitorar em tempo real e alterar os parâmetros de corte, incluindo largura de corte, velocidade de corte e profundidade de corte. |
![]() |
|
A principal estrutura domáquina de cortar bobina de alumínioInclui dispositivo de desenrolamento, dispositivo de orientação e posicionamento de material, dispositivo de corte e deslizamento e dispositivo de retrocesso. Entre eles, o dispositivo de desenrolamento é responsável por desenrolar a tira de alumínio; O dispositivo de orientação e posicionamento do material é usado para guiar a tira de alumínio na área de corte e corte; O dispositivo de corte e corte é responsável por cortar a tira de alumínio em tiras da largura necessária; O dispositivo de rebobinagem rebobina a tira de alumínio cortada em um rolo.
Além disso, a linha de corte de bobina de alumínio também está equipada com um sistema de controle eletrônico e um sistema de transmissão. O sistema de controle eletrônico controla a operação de toda a máquina de corte de bobina de alumínio através de dispositivos como controladores, servo motores, codificadores e telas de toque para garantir que cada parte funcione de maneira suave e de maneira estável. O sistema de transmissão aciona cada dispositivo através de motores de servo, redutores, rodas dentadas e correntes para realizar as funções de desenrolar, cortar e rebobinar a tira de alumínio. |
![]() |
De acordo com as diferentes necessidades de produção dos clientes, existem muitos tipos de máquinas de corte de bobina de alumíniono mercado. Por exemplo, de acordo com os diferentes requisitos de espessura das bobinas de metal a serem processadas pelos clientes, o Kingreal Steel Slitter projetou máquinas de corte de medidores leves, máquinas de corte de bitola médio e máquinas de corte de bitola pesada. OMáquina de deslizamento de medidores leves pode processar bobinas de metal com uma faixa de espessura de 0,2-3 mm; oMáquina de corte de bitola médiapode processar bobinas de metal com uma faixa de espessura de 3-6 mm; oMáquina de corte de bitola pesadapode processar bobinas de metal com uma faixa de espessura de 6 a 16 mm. Além disso, para atender às necessidades personalizadas dos clientes, o Kingreal Steel Slitter também projeta linhas de corte de bobina de alumínio da tensão da correia, máquinas de corte de alta velocidade e máquinas de corte de bobina de cabeça de slitter dupla para clientes.
|
|
![]() |
![]() |
Máquinas de corte de bobina de alumíniosão amplamente utilizados no ALUIndústria de processamento de tiras minumumes, especialmente em construção, transporte, embalagem e outros campos. Ele pode cortar e processar com precisão tiras de alumínio para atender às diversas necessidades de materiais de tira de alumínio em diferentes campos. Por exemplo, no campo da construção, as linhas de corte de bobinas de alumínio podem cortar tiras de alumínio em tiras de diferentes larguras para atender aos requisitos para fazer portas e janelas de liga de alumínio, paredes de cortina e outros materiais de construção; No campo do transporte, as linhas de corte de bobina de alumínio podem cortar tiras de alumínio em tiras de tamanhos específicos para fabricar corpos automotivos, carruagens e outros componentes; No campo da embalagem, as linhas de corte de bobina de alumínio podem cortar tiras de alumínio em materiais de embalagem de várias formas para satisfazer muitas necessidades.

Com o avanço contínuo da ciência e da tecnologia e o desenvolvimento contínuo da indústria de processamento de tiras de alumínio,linhas de corte de bobina de alumíniotambém estão constantemente inovando e atualizando. No futuro, as máquinas de corte de bobina de alumínio se desenvolverão em uma direção mais inteligente, automatizada e eficiente. Por exemplo, algumas linhas avançadas de corte de bobina de alumínio foram equipadas com sistemas de controle inteligentes e sistemas de visão de máquina, que podem realizar funções como ajuste automático de parâmetros de corte, detecção automática e correção de erros; Ao mesmo tempo, o sistema de transmissão e a tecnologia de corte do equipamento também estão sendo otimizados e melhorados continuamente para melhorar a precisão e a eficiência do corte.
Além disso, com a melhoria contínua da conscientização ambiental e a popularização dos conceitos de produção verde, as máquinas de corte de bobinas de alumínio também prestarão mais atenção à proteção ambiental e economia de energia. No futuro, as linhas de corte de bobinas de alumínio serão fabricadas e usadas com materiais e processos mais ecológicos para reduzir a poluição e os danos ao meio ambiente.



Se você estiver interessado em máquinas de corte de bobina de alumínio e deseja obter informações mais relevantes, consulte o Kingreal Steel Slitter! Temos uma equipe profissional on-line de 24 horas para fornecer respostas profissionais à máquina.